×
VenteLocationsProjetsContact

Estimation Réalisations

NL FR

À vendre : appartement neuf 1 chambre dans le projet Antoine à Knokke-Heist.

€ 405.000
Ref. Antoine 13
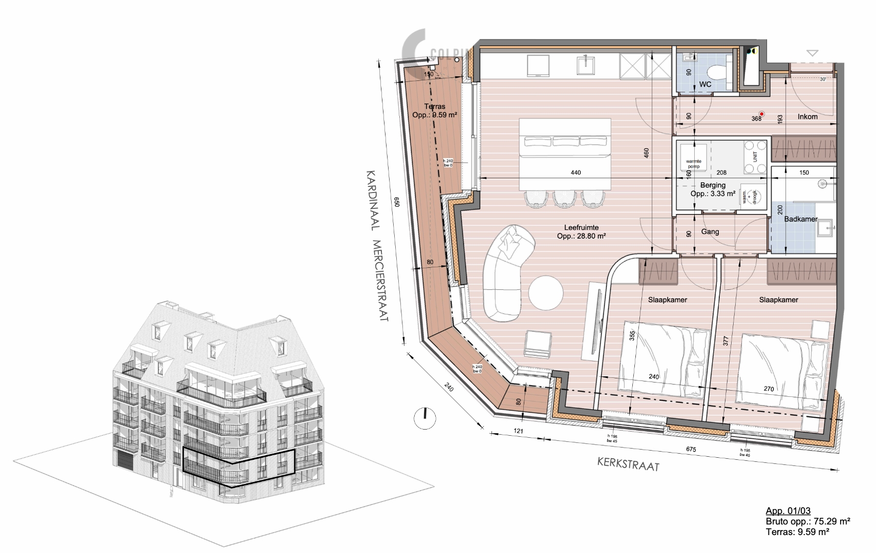
2 1 75 m² 85 m²

Découvrez ce magnifique appartement neuf avec 1 chambre spacieuse dans le projet exclusif Antoine, idéalement situé au centre de Heist (Knokke-Heist), à deux pas de la digue et à proximité immédiate des commerces, restaurants et commodités.
Vivre avec lumière, espace et situation idéale près de la mer.

Grâce à sa situation centrale, vous profitez pleinement de Knokke-Heist : la digue, la plage et les rues commerçantes sont accessibles à pied. Les appartements situés dans la Kardinaal Mercierstraat bénéficient en outre d’une vue latérale sur la mer, renforçant l’ambiance balnéaire.

Un atout supplémentaire est la hauteur de construction plus basse dans la Kerkstraat (un étage de moins que le projet), ce qui garantit une meilleure luminosité et une sensation d’ouverture. Combiné à une orientation favorable, cela offre beaucoup de soleil et un cadre de vie agréable.

Agencement réfléchi et confort moderne
L’appartement est conçu avec une attention particulière au confort et à la fonctionnalité et comprend :


  • Une chambre spacieuse

  • Un séjour lumineux et agréable

  • Une salle de bains entièrement équipée

  • Un espace de rangement pratique

  • Un hall d’entrée avec toilette séparée

  • Une terrasse ensoleillée


Habitat durable et économe en énergie
L’appartement est équipé d’un chauffage par le sol via géothermie, garantissant un système de chauffage et de refroidissement à la fois durable, économique et confortable.

Projet de qualité par un promoteur local reconnu
La résidence Antoine est réalisée par un promoteur local et réputé, gage de qualité et de fiabilité. De plus, les appartements sont proposés à des prix attractifs, ce qui renforce l’intérêt de ce projet.

Équipements supplémentaires pour plus de confort


  • Local à vélos commun au rez-de-chaussée

  • Avantage fiscal intéressant : TVA réduite à 6% possible


Cet appartement peut être acquis à un taux de TVA réduit de 6% au lieu de 21%, sous certaines conditions. Cet avantage est également accessible aux investisseurs, ce qui en fait une excellente opportunité.

Livraison prévue vers Pâques 2028

Pourquoi choisir cet appartement dans la résidence Antoine ?


  • Situation centrale à proximité de la digue et des commerces

  • Vue latérale sur la mer

  • Excellente luminosité grâce à l’environnement bâti

  • Chauffage par le sol via géothermie

  • Promoteur local fiable

  • Prix attractifs

  • Possibilité de TVA à 6%

  • Idéal comme résidence principale, secondaire ou investissement


Vous recherchez un appartement neuf 1 chambre à Knokke-Heist avec beaucoup de lumière, de soleil et une situation exceptionnelle ? Cet appartement dans la résidence Antoine est une opportunité unique. Contactez-nous dès aujourd’hui pour plus d’informations ou une présentation personnalisée.

Documents

Kenny De Clercq
+32 (0)495994928

Ce bien vous intéresse ?

Champs requis *

Spécifications:

Type: Appartement
Nouvelle construction: Ja
Année de construction: 2028
État général: Nouvel état
Chambre(s):2
Surface habitable m²: 75
Surface totale m² incl. terras: 85
Adresse: 19
8301, Heist-aan-Zee
Etage: 1
Ascenseur: Ja
C.I.:

Disposition:

Chambre à coucher2
Cuisine1
Salle de bains1
Salle de séjour1
Débarras1
Toilettes1
Toilettes1

Informations techniques:

Plan P.L.U.I.S.:
Zone non inondable
Zone: Pas d’application
G-score A
P-score A
Renseignements urbanistiques:
Citation: Nee
Permis: Ja
Zonage: Zone d’habitat
Droit de préemption: Nee
Licence parcellaire: Nee
Top